martinopeña

LA FLOTA

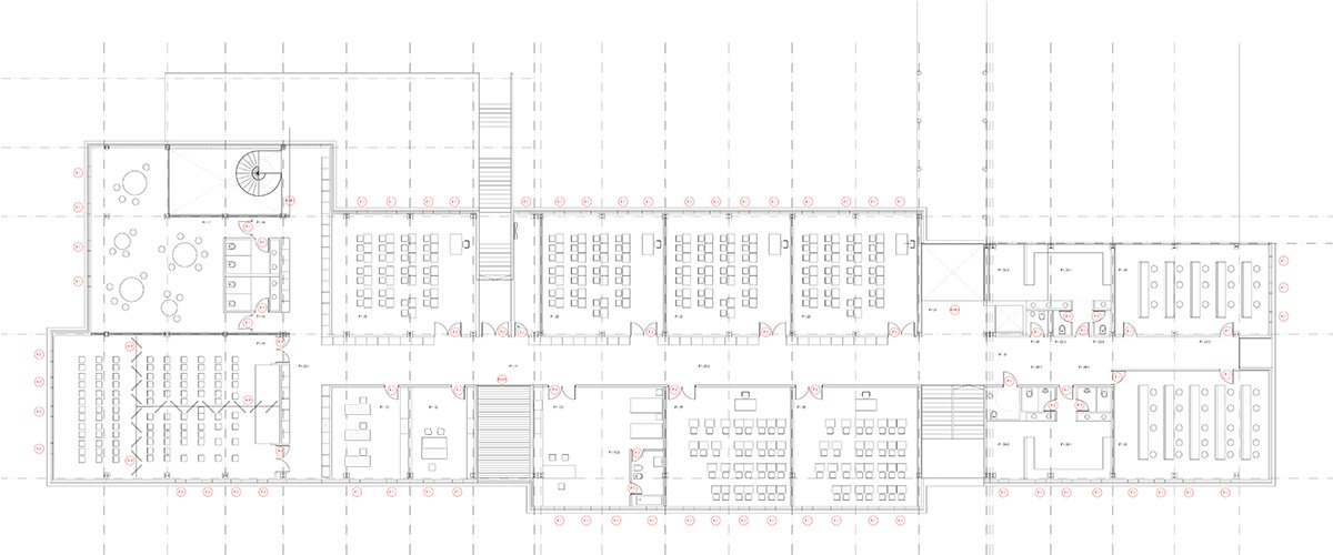
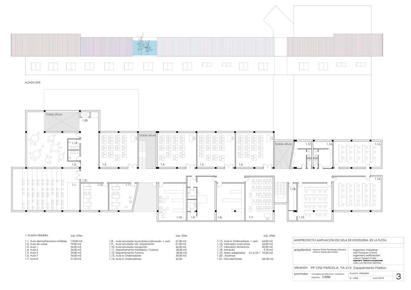
SCHOOL FOR GASTRONOMY, TOURISM AND CATERING OF THE REGION OF MURCIA | LA FLOTA, MURCIA, SPAIN | MARTINO PEÑA, ANTONIO CEREZUELA | 2019-2021 | 2120m²

The old School for Gastronomy, Tourism and Catering from the Region of Murcia in Spain needed to have an extension. The old concrete building from the nineties is in the same plot with a Secondary School together, where they share different facilities. We won with our proposal for the Competition launched by the Community Region of Murcia. It is a light, metal frame, which is placed freely on the top of the old concrete School. The new extension should be an icon for the educational institution. At the same time, a new entrance was needed which had been achieved through the new situation of the extension. The system is held by castellated beams, which offer different possibilities and advantages; they are light and strong, inexpensive and elegant. The hexagonal holes make the work easier for the installers and electricians, cables and pipes can cross the beams without any problem.

ALL IN
ARCHITECTURE

TEACHING

RESEARCH